Detalles
- Operación: Venta
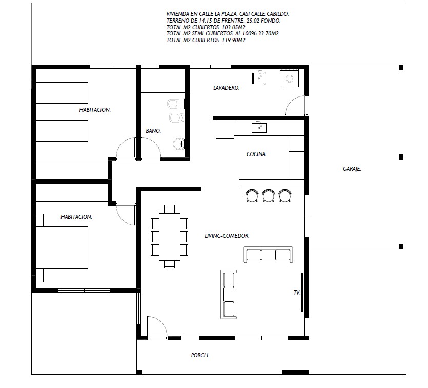
- Dormitorios: 2
- Baños: 1
- Sup. lote: 354 m²
- Sup. cubierta: 136.75 m²
- Año de construcción : 2025
- Orientación: Este
- Condición: NUEVO
- Antigüedad aprox.: A estrenar
- Situación: En construcción
Descripción
-
Descripción:
Casa a estrenar sobre calle La Plaza, casi Cabildo San José.
Mostrar toda la descripción
Sobre lote de extenso frente.
Dependencias: cocina, comedor-estar, 2 dormitorios, baño, lavadero y cochera.
Se entrega terminada en 5 meses.
Superficies: 103,05 m2 cubiertos y 33,70 m2 semi cubiertos, lote de 354 m2 (14,14m de frente por 25,02m de fondo).
Ambientes grande, comodos e ilumunados.
Ubicación
Consultar por esta propiedad
Powered by Estatik