Duplex a estrenar en San José
Lavalle 834, E3283 San José, Entre Ríos, ArgentinaDetalles
- Operación: Venta
- Tipo: Dúplex
- Dormitorios: 2
- Baños: 2
- Sup. lote: 108 m²
- Sup. cubierta: 133 m²
- Orientación: Oeste
- Condición: EN cosntrucción
- Antigüedad aprox.: A estrenar
- Situación: Vacío
Descripción
-
Descripción:
3 dúplex en San José.
Mostrar toda la descripción
Venta dese el pozo.
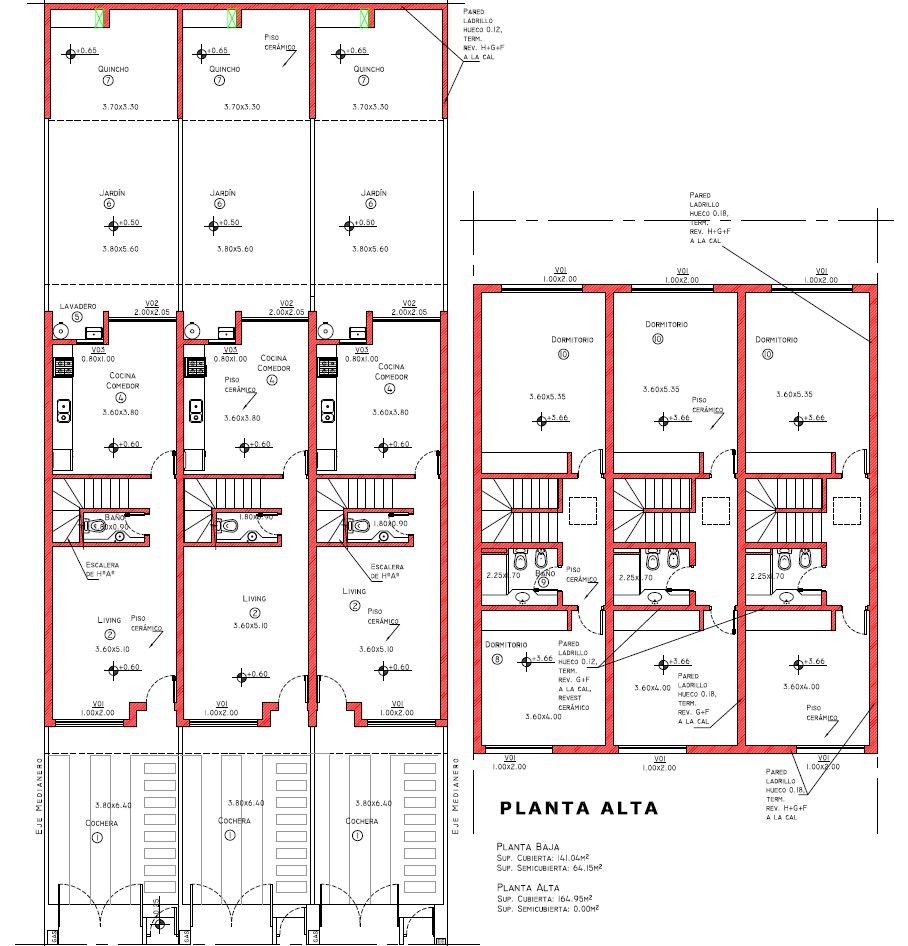
Planta baja: Cochera descubierta, living, cocina comedor, toilette, lavadero, patio y quincho.
Planta alta: 2 Dormitorio y baño.
Unidades modernas a estrenar ideales para quienes buscan un espacio confortable y funcional.
Ambientes amplios y cómodos.
Se entregan en julio 2027.
Desde el pozo: entrega de U$S 50.000 y 20 cuotas de U$S 2.500
Características
- Características:
Ubicación
- País: Argentina
- Provincia: Entre Ríos
- Departamento: Colón
- Código Postal: E3283
Consultar por esta propiedad
Powered by Estatik